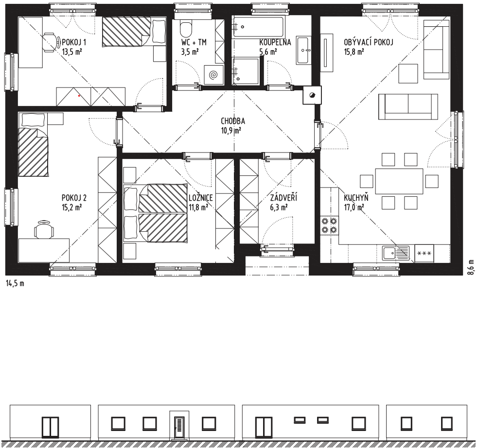
Abies je jednopodlažní rodinný dům pro čtyř až šestičlennou rodinu. Bungalov při své nevelké rozloze poskytuje dostatek prostoru pro dva dětské pokoje, ložnici rodičů a praktické zádveří. Moderním propojením kuchyně s obývacím pokojem vzniká velký prostor pro setkávání celé rodiny. Při návrhu domu byl kladen velký důraz na minimalizaci investičních a současně i provozních nákladů. Díky jednoduchému řešení nosných konstrukcí lze interiér domu velmi dobře adaptovat dle individuálních požadavků. Dům je možné realizovat v zrcadlově převráceném provedení.
Dispozice: 4 + kk
Zastavěná plocha: 122m2
Užitná plocha: 100 m2
Výška hřebene: 3,5m
Sklon střechy: 1,7°
Orientace: V, S, Z
Hrubá stavba od 938 000,- Kč vč. DPH
Uvedená cena zahrnuje:
- Vnější stěny z panelů K-KONTROL®
- Vnitřní nosné a ztužující stěny z panelů K-KONTROL®
- Střešní konstrukci z nosníků I-OSB™
- Nosný záklop střechy z desek OSB
- Střešní atiku
- Konstrukční řezivo
- Spojovací a kotevní materiál
- Montážní dokumentace
Uvedená cena nezahrnuje: základy a připojení domu na inženýrské sítě, vodorovnou hydroizolaci, komínové těleso, střešní krytinu, okna a dveře, fasádu, izolaci soklu, klempířské prvky, hromosvod, vnitřní povrchové úpravy nosných stěn, vnitřní dělící příčky, tepelnou izolaci střechy, sádrokartonové podhledy, keramické obklady, výmalbu, vnitřní podlahy vč. tepelné izolace a krytiny, technické instalace a vybavení (vodovod, kanalizace, vytápění, větrání), zařizovací předměty a užitné vybavení, terasu, úpravy terénu, montáž a projekt.